うきは市吉井町
レッドハウス福益A
名称 レッドハウス福益A・B
賃料 1Kロフト付 41,000円/月
2LDK 46,000円/月
共益費 込み 駐車場 1台込み(2台目2,000円)
敷金 1ケ月 礼金 1ケ月
物件概要
所在地/A:福岡県うきは市吉井町福益801-2
B:福岡県うきは市吉井町福益801-18
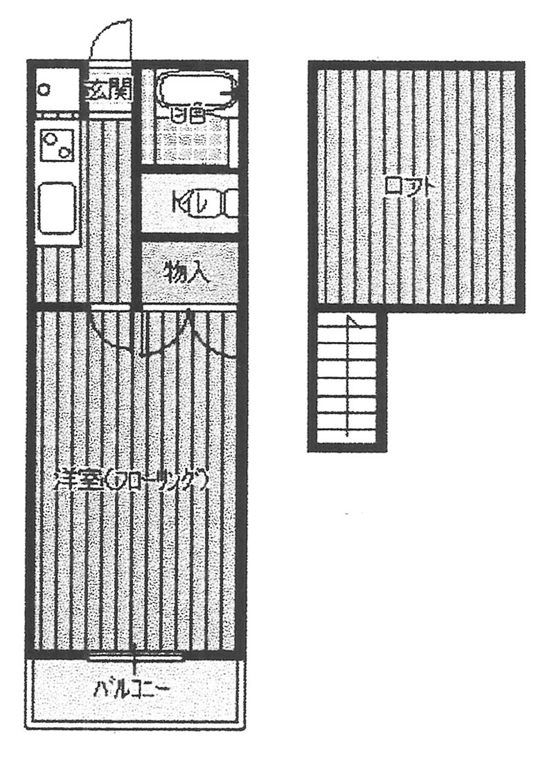
間取り/1Kロフト付 占有面積/22.87㎡
A棟のうち4室は2LDK 占有面積45.13㎡
物件種類/アパート 建築構造/木造
階数/2階建 築年月日/1999年10月
交通/西鉄バス「中町」停 徒歩11分
JR久大線駅筑後吉井駅 徒歩11分
取引態様/媒介(仲介)
設備情報
インターフォン・ユニットバス・トイレ(独立)・温水洗浄便座・ガス給湯器・エアコン・BSアンテナ・室内照明・室内洗濯機置き場・クローゼット・シューズボックス・ベランダ・屋外物干し台・駐輪場(バイク可)
ガス種別:プロパン

1K ロフト付

2LDK
1K ロフト付
2LDK